您好,欢迎来到本网站!江苏欧密格能源设备有限公司专业提供:电站阀门,特种阀门化工阀门等产品
400-100-7828
产品类别
联系我们

江苏欧密格能源设备有限公司

联系人: 石玉丽

手机: 15261141319

电话: 0519-85133688

传真: 0519-85193886

邮箱: changzhouhongfu@126.com

网址: www.czomg.com

地址: 常州市新北区太湖东路创意产业园D座1221室

您现在的位置:首页 > 产品展示 > 调节阀 > 单座调节阀 > 电动单座调节阀产品展示

电动单座调节阀

电动单座调节阀
产品名称:

电动单座调节阀 

产品型号:
ZAZP 
产品口径:
DN20-300 
产品压力:
0.6~10.0Mpa 
产品材质:
铸钢、不锈钢、合金钢等 
产品简介:
 
制造标准:中国GB、机械部JB、化工标准HG、美标API、ANSI、德标DIN、日本JIS、JPI、英标BS生产。阀体材质:铜、铸铁、铸钢、碳钢、WCB、WC6、WC9、20#、25#、锻钢、A105、F11、F22、不锈钢、304、304L、316、316L、铬钼钢、低温钢、钛合金钢等。工作压力1.0Mpa-50.0Mpa。工作温度:-196℃-650℃。连接方式:内螺纹、外螺纹、法兰、焊接、对焊、承插焊、卡套、卡箍。驱动方式:手动、气动、液动、电动。 

概述:
 ZAZ(P、N、M)型电动调节阀由电动执行机构与各种的阀体(单座、双座、套筒)组配而成,而具备了各种阀的特点。电动调节阀以单相交流220V电源为动力,接受统一的标准电信号0-10mADC或4-20mADC,自动的控制阀门开度,达到对工作流量、压力、温度、液位等参数的自动控制,是生产过程自动调节的组成之一。广泛用于电力、冶金、轻工、食品、石油、化工等工业的自动控制中。


规格与技术参数:

公称通径DN(mm)
3/4”
20
25
32
40
50
65
80
100
125
150
200
250
300
额定流量
系数kv
单座
P
0.08~0.8
1.2~5.0
8
12
20
32
50
80
120
200
280
450
双座
N
10
16
25
40
63
100
160
250
400
630
1000
1600
套筒
M
15
20
30
75
115
240
350
公称压力(MPa)
1.6 4.0 6.0
行程(mm)
10
16
25
40
60
100
电动执行器型号
DKZ-310/310C
DKZ-410/410C/510/510C
DKZ-510/510C
信号
Ⅱ型0-10mA DC Ⅲ型4-20mA DC
介质温度℃
-40~230℃(常温型),散热片式230~450℃(中温型),特殊订货-100~600℃
流量特性
直线  百分比
可调范围
30:1
电源电压
220VAC 50~60Hz
作用方式
电开式(K) 电闭式(B)







(MPa)
0.6
低温: ZG1Cr18Ni9Ti
1.6
常温:HT200 ZG230-450
4.0
低温: ZG1Cr18Ni9Ti
常温:ZG230-450、ZG1Cr18Ni9Ti
中温:ZG230-450、ZG1Cr18Ni9Ti
6.4
低温:ZG1Cr18Ni9Ti
常温:ZG230-450、ZG1Cr18Ni9Ti
中温:ZG230-450、ZG1Cr18Ni9Ti
法兰尺寸
管连接
铸钢法兰按JB77-59,铸铁法兰按JB79-59
法兰型式
法兰密封型式按JB77-59,其中PN6.0法兰按准糟式
铸钢法兰按光滑式,铸铁法兰按凹式
阀芯材质
1Cr18Ni9Ti
上阀盖型式
普通式(常温型),热片式(中温型),长劲式(低温式)

主要技术性能指标
项目
指标
基本误差%
±5.0
回差%
3.0
死区%
3.0
泄漏量
单座阀
符合JB/T7387-94 IV级 小于阀的额定容量×10-4
双座阀
符合JB/T7387-94 Ⅲ级 小于阀的额定容量×10-3
套筒阀
符合JB/T7387-94 Ⅲ级 小于阀的额定容量×10-3


允许压差
使用情况
阀芯处于流开状态,关闭时阀后压力P2=0
公称通径
DN(mm)
阀座直径
DN(mm)
执行机构
有效推力
(N)
允许压差(sMPa)
电动直通单座调节阀
PN1.6(MPa)
PN6.4(MPa)
3/4
3
4
5
6
7
8
20
10
12
15
20
400,1000,2500
公称压力
3.8
2.7
1.7
1.0
公称压力
4.34.3
2.5
25
26
400,1000,2500
0.5
公称压力
0.6
3.6
32
32
0.4
公称压力
0.4
2.3
40
40
400,1000
2500,6400
0.7
1.0
0.7
1.5
50
50
0.5
1.0
0.5
1.0
65
66
6400,16000
1.4
1.4
80
80
1.0
1.0
100
100
0.6
0.6
125
125
6400,16000
0.5
1.0
0.5
1.0
150
150
0.3
0.7
0.3
0.7
200
200
0.2
0.4
0.2
0.4
250
250
16000
0.3
0.3
300
300
0.2
0.2
注:双座、套筒阀一般可承受≤公称压力,单座调节阀差压可参考上表。

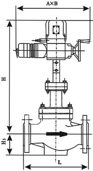
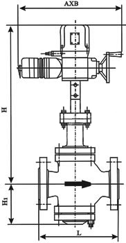
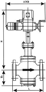
外形尺寸

ZAZP电动单座调节阀

ZAZN电动双座调节阀

ZAZM电动套筒调节阀


1、电动单座、双座调节阀
公称通径
DN
A
执行器宽
B
L
H
H1
ZAZP单座
ZAZN双座
PN1.6
PN4.0
PN6.4
普通型
热片型
普通型
热片型
ZAZP
ZAZN
20
230
460
180
185
190
653
804
/
/
65
/
25
185
190
205
665
816
670
937
99
104
32
200
210
220
671
822
673
943
105
107
40
220
230
240
683
834
693
982
116
126
50
230
530
250
255
265
698
849
698
992
131
131
65
275
285
295
789
949
799
1147
165
175
80
305
310
325
792
952
809
1177
173
190
100
350
355
370
796
956
821
1207
177
202
125
260
630
410
425
440
847
1062
872
1357
225
250
150
450
460
475
855
1070
882
1377
233
260
200
550
560
570
894
1109
924
1459
272
302
250
670
660
670
1156
1368
1156
1368
422
422
300
740
785
800
1215
1427
1215
1427
484
484

2、电动套筒调节阀
公称通径
DN
L(mm)
A
B
H(mm)
H1(mm)
PN16
PN40
PN64
普通型
热片型
25
184
197
230
230
460
668
819
75
40
222
235
260
684
835
95
50
254
267
300
684
835
98
80
295
317
380
230
530
785
946
130
100
350
368
430
795
946
156
150
480
473
550
260
630
945
1160
208
200
600
615
650
945
1160
250
250
650
670
690
1050
1320
265
300
740
770
800
1145
1320
265

电动双座调节阀

电动套筒调节阀

大口径电动调节阀
相关型号:
电动直通调节阀


订货须知

订货时请填写《规格书》或注明以下内容:
、若订货前还未选定型号,请向我们提供您的使用参数:1.公称通径、额定流量系数KV,
2.流体性质(包括公称压力、温度、粘度或酸碱性),3.阀作用形式(电-关式或电-开式),4.流量特性,
5.阀前、阀后压力,6.阀体、阀芯材料,7.输入信号,8.是否带附件,说明附件型号。以便我们的为您正确选型。
、若已经由设计单位选定我公司的产品型号,请按型号直接向我司销售部订购;
、当使用的场合非常重要或管路比较复杂时,请您尽量提供设计图纸和详细参数,由我们的专家为您审核把关。