您好,欢迎来到本网站!江苏欧密格能源设备有限公司专业提供:电站阀门,特种阀门化工阀门等产品
400-100-7828
产品类别
联系我们

江苏欧密格能源设备有限公司

联系人: 石玉丽

手机: 15261141319

电话: 0519-85133688

传真: 0519-85193886

邮箱: changzhouhongfu@126.com

网址: www.czomg.com

地址: 常州市新北区太湖东路创意产业园D座1221室

您现在的位置:首页 > 产品展示 > 调节阀 > 自力式调节阀 > 自力式电控温度调节阀产品展示

自力式电控温度调节阀

自力式电控温度调节阀
产品名称:

自力式电控温度调节阀 

产品型号:
ZZWPE型 
产品口径:
DN15-200 
产品压力:
0.6~6.4Mpa 
产品材质:
铸钢、不锈钢、合金钢等 
产品简介:
 
制造标准:中国GB、机械部JB、化工标准HG、美标API、ANSI、德标DIN、日本JIS、JPI、英标BS生产。阀体材质:铜、铸铁、铸钢、碳钢、WCB、WC6、WC9、20#、25#、锻钢、A105、F11、F22、不锈钢、304、304L、316、316L、铬钼钢、低温钢、钛合金钢等。工作压力1.0Mpa-50.0Mpa。工作温度:-196℃-650℃。连接方式:内螺纹、外螺纹、法兰、焊接、对焊、承插焊、卡套、卡箍。驱动方式:手动、气动、液动、电动。 

产品概述:
◆用途与特点
自力式电控温度调节阀(适用于较大口径及导热油控制),该阀最大的特点只需普通220V电源,利用被调介质自身能量,直接对蒸汽、热水、热油与气体等介质的温度实行自动调节和控制,亦可使用在防止对过热或热交换场合,该阀结构简单,操作方便,选用调温范围广、响应时间快、密封性能可靠,并可在运行中随意进行调节,因而广泛应用于化工、石油、食品、轻纺、宾馆与饭店等部门的热水供应。

零件资料:
◆结构与原理
调节阀由主阀、智能执行器与传感器三部分组成,根据用户需要,分别有加热型与冷却型两种结构。
1.加热型调节阀的结构与原理,见附图示:
工作前主阀芯处于半开位置,传感器处于自然状态。接上电源,主阀芯全开。介质由箭头方向流入主阀体、经阀芯对储热箱进行加热。当温度升到相应设定值时,传感器即产生相应线性信号输入一体化智能执行机构,随即驱动阀杆、阀芯产生位移,关闭主阀芯停止加热。当温度低于设定值时,传感器即产生线性信号输入执行机构,驱使阀芯渐开,使介质按抛物线特性流入储热箱,进行加热直至设定值。这样被控介质始终在设定温度范围内被控制,从而达到控温目的。

外型示意图
(1)智能型执行器
(2)主阀体
(3)传感器
(4)毛细管
(5)手动机构
备注:常说的加热型、冷却型。在此阀中只要更换阀芯结构即可以实现。

技术参数:
◆主要参数与材料
1、主要参数表

公称通径 (mm) 15 20 25 32 40 50 65 80 100 125 150 200

公称压力 PN(MPa)

1.6 4.0

 

流量能力 (m 3 /h)

5 7 10 16 25 40 63 100 160 250 400 630

额定行程 (mm)

6 8 10 14 20 30 30 40

温度调节范围 ( ℃ )

0~120 : 100~250

调节精度 ( ℃ )

± 1 ~ ± 5

使用介质

蒸汽、水、油、气体

允许
泄漏量

硬密封

10 -4 X 阀额定容量

软密封

“ 0 ”

毛细管长度

3m 、 5m 、 10m

温包扦入深度

270 、 430 、 630

联接螺纹

3/4 ” 1 ”

◆配套用电动执行机构有关技术参数

公称通径 DN ( mm ) 20 25 32 40 50 65 80 100 125 150 200
电动执行机构型 号 普通型 ZAZ-60
DKZ-310
ZAZ-60
DKZ-310
DKZ-410 DKZ-410
DKZ-510
电子型 JHZAZ1 JHZAZ2 JHZAZ3 JHZAZ3
电动执行机构推 力( N ) 普通型 400
4000
400
4000
6400 6400
16000
电子型 2000 4000 6000 8000
全行程
时 间
( S )
普通型 12.5 20 32 48
电子型 30 30 48 60
消耗功率( W ) 普通型 28 35
电子型 6 15 25 40

*表中数据仅为常规配置,具体选用根据主要参数及用户要求而定。
 
规格重量:
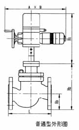
◆外型尺寸及重量
普通型     单位:mm

公称通径 DN 20

25

32

40

50

65

80

100

125

150

200

A

460

530

630

B

230

230

260

H 1

490

540

625

L

150

160

180

200

230

290

310

350

400

480

600

H 2

175

180

215

218

230

280

285

315

400

460

540

H 3

53

57.5

70

75

82.5

92.5

100

110

125

142.5

170

重量 (Kg) PN 16 40

50

52

54

56

58

75

87

95

132

135

155

PN64

53

56

58

65

68

84

110

129

177

180

210

电子型    单位:mm


公称通径 DN
20

25

32

40

50

65

80

100

125

150

200

d

φ 155 φ 162 φ 170
H 4

290

325

380

L

150

160

180

200

230

290

310

350

400

480

600

H 5

175

180

215

218

230

280

285

315

400

460

540

H 6

53

58

70

75

82

92

100

110

125

142

170

重量 (Kg) PN 16 40

10

12

15

17

18

34

46

54

76

79

100

PN64

13

16

19

26

27

43

69

85

120

125

150

连接标准:

◆连接尺寸及标准
·法兰标准:铸铁法兰按GB4216-84、铸钢法兰按GB9113-88
·法兰密封面型:PN10、PN16为凸面 PN40、PN64为凹凸面,阀体为凹面
·结构长度:GB12221-89
·夹套保温型夹套载热体接口:对焊φ18×4
*阀体法兰及法兰端面距离可以按用户指定的标准制造。如ANSI、JIS、DIN等标准。

◆订货须知;
订货时请用户提供以下资料:
·调节阀名称、型号
·公称通径(mm)
·公称压力 (MPa)
·额定流量系数(Kv)
·固定流量特性
·介质名称、阀前后压力、温度、流量等
·整机作用方式(电开、电关)及输入信号
·阀体、阀内件及填料材质
·附件(操作器、伺服放大器等)
·其他特殊要求