
江苏欧密格能源设备有限公司
联系人: 石玉丽
手机: 15261141319
电话: 0519-85133688
传真: 0519-85193886
网址: www.czomg.com
地址: 常州市新北区太湖东路创意产业园D座1221室

产品概述:
直接作用型自力式压力(差压)调节阀,由阀体、阀座、阀芯部件等零部件组成,是一种无需外来能源而只依靠被调介质自身的压力变化进行自动调节压力的节能型产品,可用于非腐蚀性(最高温度350℃)的液体、气体和蒸汽等介质的压力控制装置。广泛适用于石油、化工、冶金、轻工等工业部门及城市供热、供暖系统。
◆型号、规格
| 类别 | 压力控制调节阀 | 差压控制调节阀 | ||||||
| 阀后压力调节阀 |
阀前压力调节阀 |
差压上升阀关闭 | 差压上升阀开启 | |||||
| 硬密封 | 软密封 | 硬密封 | 软密封 | 硬密封 | 软密封 | 硬密封 | 软密封 | |
| 型号 | V230 D01 | V230D01 | V230D02 | V231D02 | V230D03 | V231D03 | V230D04 | V231D04 |
| 规格 | DN15-250 | |||||||
零件资料:
阀体、阀盖:HT200 ZG230~450 ZG1Cr18Ni9Ti
阀芯、阀座:1Cr18Ni9Ti
波 纹 膜 片:丁腈橡胶夹增强涤纶织物
填 料:聚四氟乙烯、柔性石墨
弹 簧:60si2Mn
膜 盖:A3
推杆、阀杆:2Cr13、1Cr18Ni9Ti
衬 套:2Cr13
垫 片:橡胶石棉板、10、1Cr18Ni9石棉缠绕垫片
技术参数:
|
公称通径 mm |
15 | 20 | 25 | 32 | 40 | 50 | 65 | 80 | 100 | 125 | 150 | 200 | 250 | |
| 额定流量系数 Kvs | 3.2 | 5 | 8 | 12.5 | 20 | 32 | 50 | 80 | 125 | 160 | 320 | 450 | 630 | |
|
公称压力 MPa |
1.6 ; 4.0 | |||||||||||||
| Z 值 | 0.6 | 0.6 | 0.6 | 0.55 | 0.55 | 0.5 | 0.5 | 0.45 | 0.4 | 0.35 | 0.3 | 0.2 | 0.2 | |
| 最高工作温度℃ |
V230 V231 |
液体≤ 140 ;气体≤ 80 | ||||||||||||
|
硬密封 V230 |
配隔离罐≤ 200 | 配隔离罐和加长件≤ 300* | ||||||||||||
| 配隔离罐和散热片≤ 200 | ||||||||||||||
| 压力平衡元件 | 波纹管 | 滚动膜片 | ||||||||||||
| 法 兰 标 准 | DIA (亦可按用户要求提供法兰标准) | |||||||||||||
| 阀 体 材 质 | PN16 :铸铁(工作温度≤ 200 ℃); PN4.0 :铸钢、铸不锈钢(工作温度≤ 350 ℃) | |||||||||||||
| 阀 芯 材 质 | 不锈钢;软密封为不锈钢镶嵌橡胶圈 | |||||||||||||
| 最高工作压力 MPa | 公称压力(注意△ Pmax 及工作压力与工作温度的关系) | |||||||||||||
注:
1、液体>140℃、气体>80 ℃时阀倒装;
2、Z值:噪音衡量系数,该值用来衡量噪音大小,具体计算详见自力式调节阀选择指南。
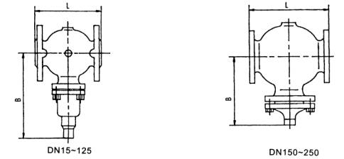
◆外形尺寸

◆V230/V231控制阀尺寸及重量
公称通径 mm |
20 | 25 | 32 | 40 | 50 | 65 | 80 | 100 | 125 | 150 | 200 | 250 |
| L mm | 150 | 160 | 180 | 200 | 230 | 290 | 310 | 350 | 400 | 480 | 600 | 730 |
| B mm | 212 | 238 | 238 | 240 | 240 | 275 | 275 | 380 | 380 | 295 | 325 | 372 |
| 大约重量 kg | 6.7 | 9.7 | 13 | 14 | 17 | 29 | 33 | 60 | 70 | 80 | 140 | 220 |
◆D02(D04)执行器尺寸及重量
有效面积 cm 2 |
32 |
80 |
250 | 630 |
| D mm | 172 | 172 | 263 | 380 |
| H mm | 435 | 430 | 470 | 520 |
| 大约重量 kg | 7.5 | 7.5 | 13 | 28 |

◆D01(D03)执行器尺寸及重量
有效面积 cm 2 |
32 |
80 |
250 | 630 |
| D mm | 172 | 172 | 263 | 380 |
| H mm | 440 | 435 | 440 | 520 |
| 大约重量 kg | 7.5 | 7.5 | 13 | 28 |
◆ 订货须知
订货时请用户提供以下资料:
·调节阀名称、型号
·公称通径(mm)
·公称压力(MPa)
·额定流量系数(Kv)
·固有流量特性
·介质名称
·工作温度及范围
·整机作用方式
·阀体、阀内件及填料材质
·所配附件
·其它特殊要求